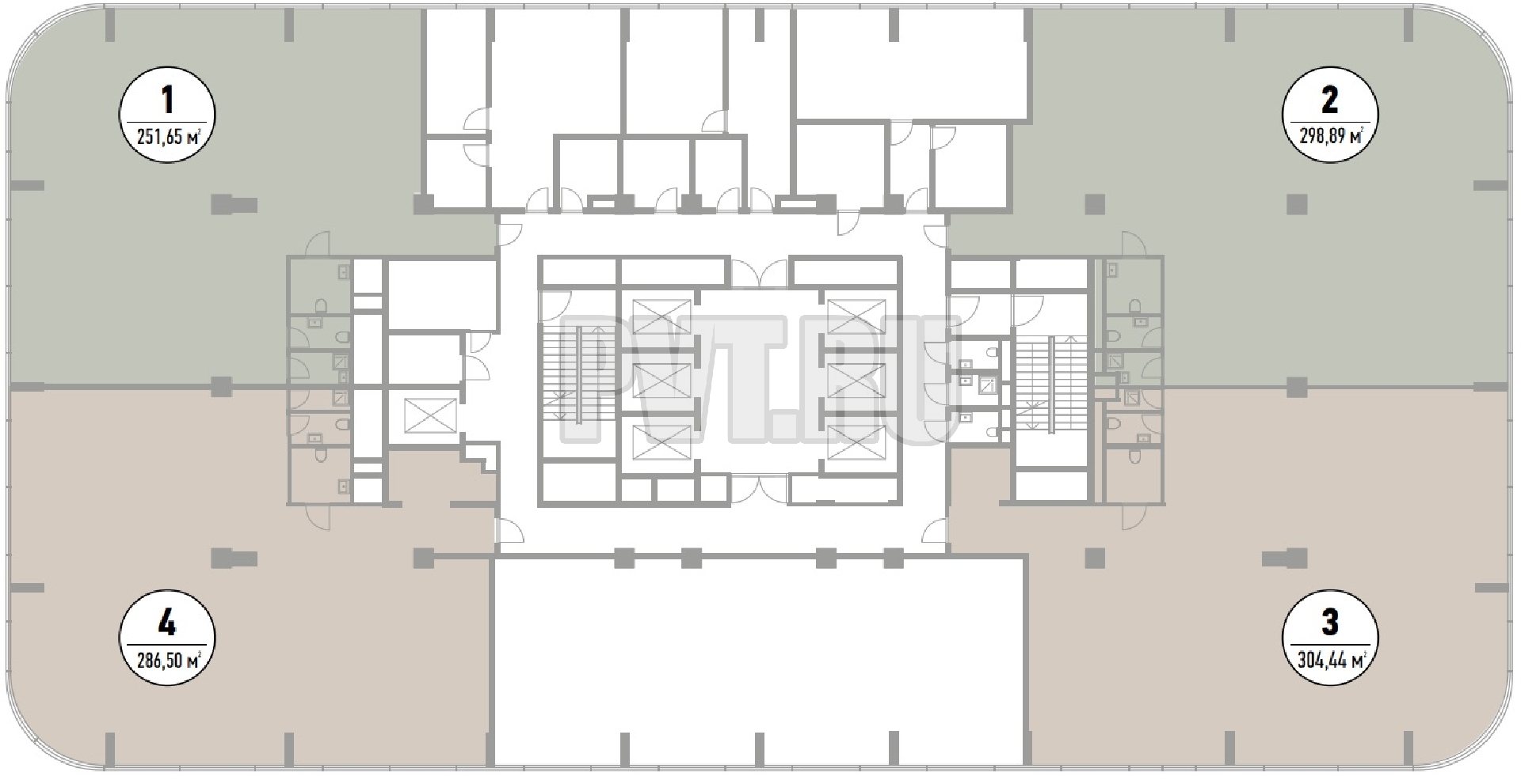
Офис, 251,7 м², открытая планировка, требуется отделка

92 821 721,31 ₽

67 622,95 ₽/м²

Связаться с нами

Коммерческие условия

Налогообложение

НДС

A

Класс

3

Налоговая

2028

Год постройки

39 050 м²

Общая площадь

31 155 м²

Полезная площадь

17

Количество этажей

Вы можете записаться на просмотр интересующей вас площади