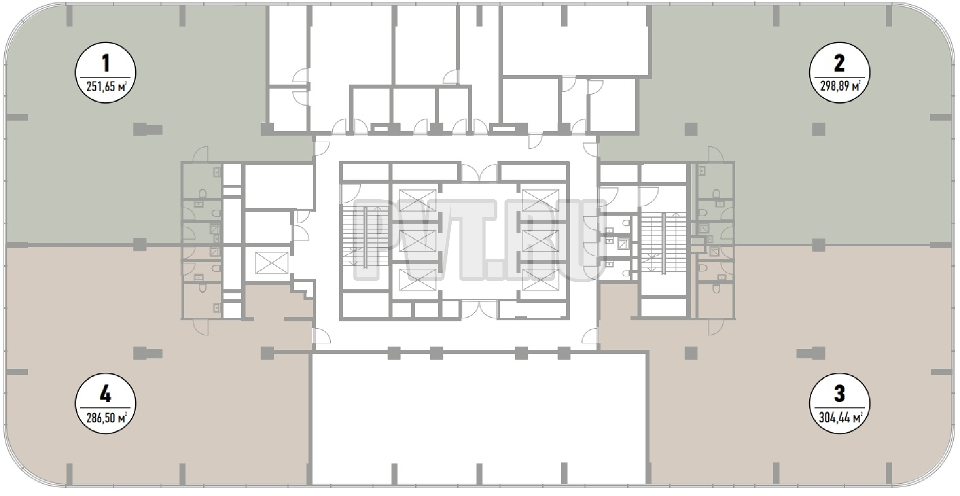
Офис, 286,5 м², открытая планировка, требуется отделка

105 676 229,51 ₽

67 622,95 ₽/м²

Связаться с нами

Коммерческие условия

Налогообложение

НДС

A

Класс

3

Налоговая

2028

Год постройки

39 050 м²

Общая площадь

31 155 м²

Полезная площадь

17

Количество этажей

Вы можете записаться на просмотр интересующей вас площади